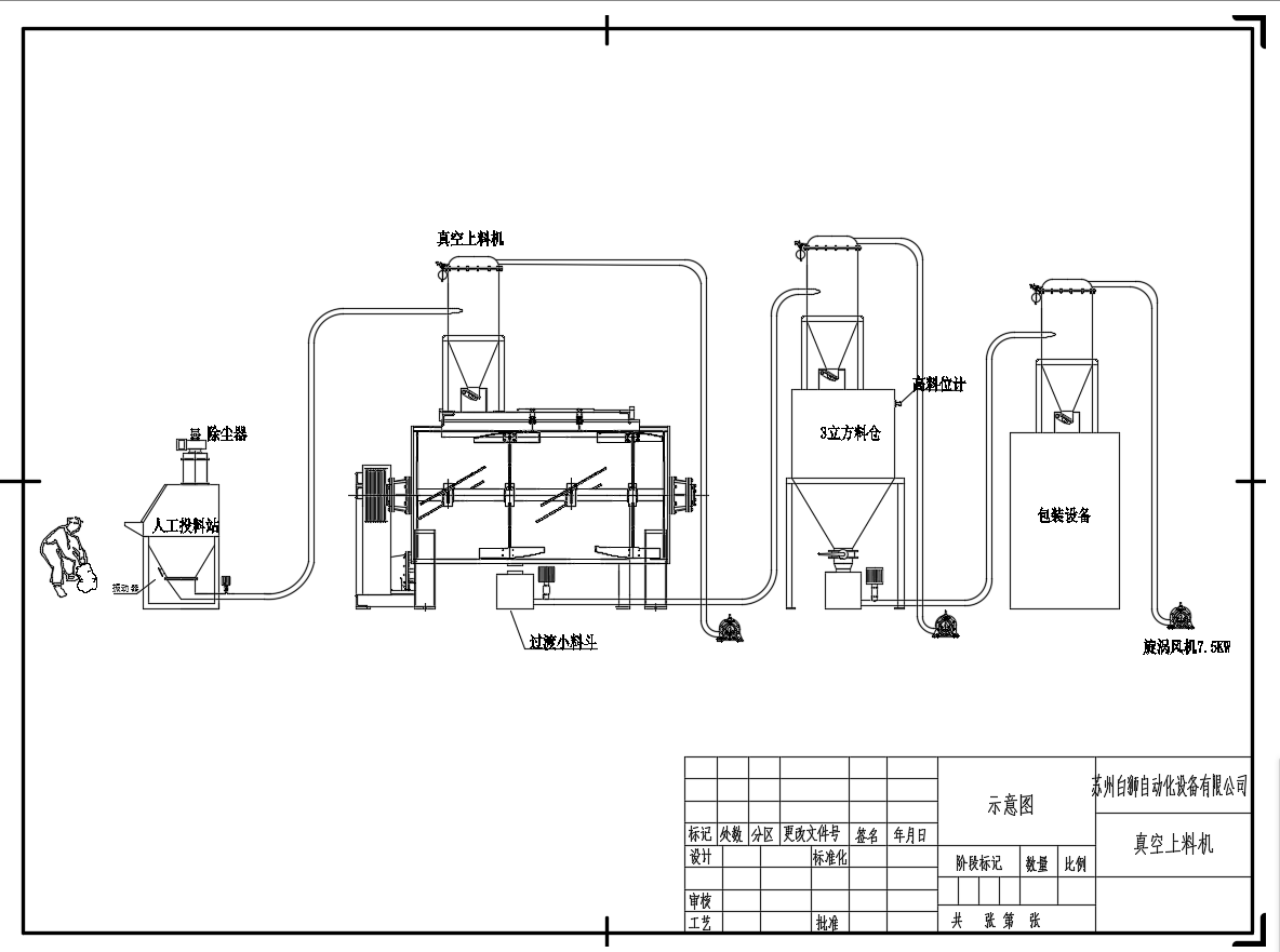
負壓真空上料機
負壓真空上料機是管道密閉輸送,這種輸送方式可以杜絕粉塵環境污染,改善工作環境,同時減少環境及人員對物料的污染,提高潔凈度;由于是管道輸送,占用空間小,能夠完成狹小空間的粉料輸送,使工作間空間美觀大方;特別不受長短距離限制。同時,負壓輸送機能夠降低人工勞動強度,提高工作效率;是絕大部分粉體物料輸送方式的首選。
蘇州白獅真空上料機是一種借助負壓氣流來傳送顆粒和粉料的輸送設備,實現自動化粉料轉移,替代人工轉移物料,節約勞動成本。密閉管道輸送,無粉塵,安全防爆,性能可靠,被廣泛應用于食品、制藥、化工、陶瓷、飼料、顏料、農產品的生產和科研領域。
【工作原理】:
真空上料機是利用真空泵產生負壓氣流,真空產生的負壓將物料從進料口被吸入。然后在在分離容器的過濾倉內,將空氣與物料進行分離。物料因重力作用而自動落下,物料被收集在料倉中。我們的旋風分離器阻止細小粉末進入過濾器,以提高過濾器的效率。待料倉充滿物料時,真空泵自動關閉,輸送設備內的壓力達到平衡。放料閥開啟,物料通過出料口流出,并直接落入儲料容器。出料時,過濾芯被反吹氣囊自動清潔。如物料較為粘稠,我們可以安裝特制的振動器輔助下料;下料結束出料艙自動關閉,整個輸送流程再次啟動。

【應用范圍】:
食品行業的添加劑、味精、香垶香料、食鹽、淀粉、面粉等;
制藥行業的粉狀物料、顆粒物料、混合物料、藥片、膠囊等;
化工行業的粉狀物料、銅粉、氫氧化銅等金屬粉末染料;
鋰電池行業:三元材料、鎳鈷錳氫氧化物、磷酸鐵鋰、正磷酸鐵、石墨材料、碳納米管等。
塑料行業:聚苯乙烯顆粒、聚乙烯顆粒、再循環橡膠、聚氨酯顆粒、乙烯-丙烯顆粒,




